間取り|三菱地所レジデンスの賃貸マンション「ザ・パークハビオ 上北沢」
三菱地所レジデンスの賃貸マンション
空室情報
TOP
ザ・パークハビオ 上北沢 トップ
ROOM PLAN
間取り
GALLERY
ギャラリー
EQUIPMENT
設備仕様
MAP
周辺案内
サイトポリシー/個人情報保護方針
三菱地所のレジデンスクラブ
お問い合わせは
三菱地所ハウスネット株式会社まで
03-5304-3081
「ザ・パークハビオ」ブランドサイト
空室情報
ROOM PLAN
間取り
ザ・パークハビオ 上北沢 トップ
間取り
1R
1K
1DK
1LDK
1SLDK
2LDK
平面図
空室情報
E
TYPE
2
LDK
51
.20㎡
J
TYPE
2
LDK
45
.59㎡
K
TYPE
2
LDK
46
.52㎡
空室情報
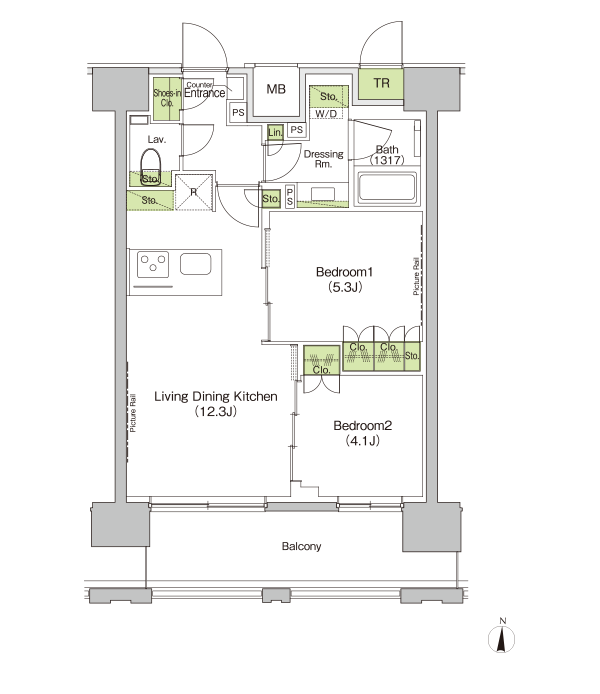
E
TYPE
専有面積
51
.20
m
2
(約15.48坪)
2
LDK
バルコニー面積/10.37㎡(約3.13坪)
LDK約12.3畳
トランクルーム
シューズインクローゼット
洗面・トイレ独立
カウンターキッチン
3口コンロ
バスルーム1317サイズ
=収納
※掲載の図面は計画段階のものであり、施工上の理由などで変更することがございます。
LDK約12.3畳
トランクルーム
シューズインクローゼット
洗面・トイレ独立
カウンターキッチン
3口コンロ
バスルーム1317サイズ
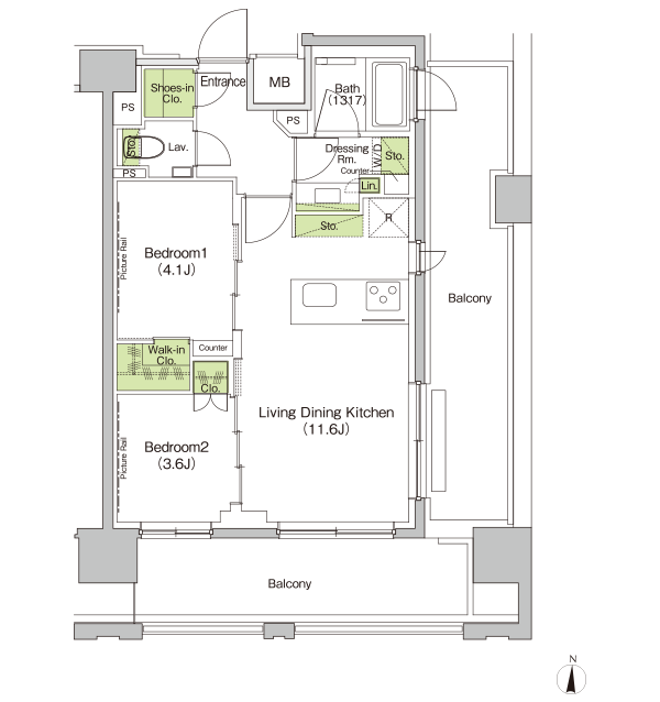
J
TYPE
専有面積
45
.59
m
2
(約13.79坪)
2
LDK
バルコニー面積/28.83㎡(約8.72坪)
LDK約10.9畳
シューズインクローゼット
ウォークインクローゼット
洗面・トイレ独立
カウンターキッチン
3口コンロ
バスルーム1317サイズ
2面バルコニー
=収納
※掲載の図面は計画段階のものであり、施工上の理由などで変更することがございます。
LDK約10.9畳
シューズインクローゼット
ウォークインクローゼット
洗面・トイレ独立
カウンターキッチン
3口コンロ
バスルーム1317サイズ
2面バルコニー
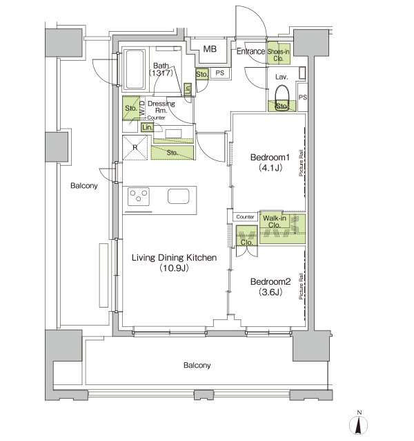
K
TYPE
専有面積
46
.52
m
2
(約14.07坪)
2
LDK
バルコニー面積/27.23㎡(約8.23坪)
LDK約11.6畳
シューズインクローゼット
ウォークインクローゼット
洗面・トイレ独立
カウンターキッチン
3口コンロ
バスルーム1317サイズ
2面バルコニー
=収納
※掲載の図面は計画段階のものであり、施工上の理由などで変更することがございます。
LDK約11.6畳
シューズインクローゼット
ウォークインクローゼット
洗面・トイレ独立
カウンターキッチン
3口コンロ
バスルーム1317サイズ
2面バルコニー