間取り|三菱地所レジデンスの賃貸マンション「ザ・パークハビオ 上北沢」
三菱地所レジデンスの賃貸マンション
空室情報
TOP
ザ・パークハビオ 上北沢 トップ
ROOM PLAN
間取り
GALLERY
ギャラリー
EQUIPMENT
設備仕様
MAP
周辺案内
サイトポリシー/個人情報保護方針
三菱地所のレジデンスクラブ
お問い合わせは
三菱地所ハウスネット株式会社まで
03-5304-3081
「ザ・パークハビオ」ブランドサイト
空室情報
ROOM PLAN
間取り
ザ・パークハビオ 上北沢 トップ
間取り
1R
1K
1DK
1LDK
1SLDK
2LDK
平面図
空室情報
A
TYPE
1
K
25
.38㎡
C
TYPE
1
K
25
.60㎡
D
TYPE
1
K
25
.60㎡
空室情報
A
TYPE
専有面積
25
.38
m
2
(約7.67坪)
1
K
バルコニー面積/7.60㎡(約2.29坪)
洋室約7.7畳
ウォークインクローゼット
2口コンロ
バスルーム1216サイズ
=収納
※掲載の図面は計画段階のものであり、施工上の理由などで変更することがございます。
洋室約7.7畳
ウォークインクローゼット
2口コンロ
バスルーム1216サイズ
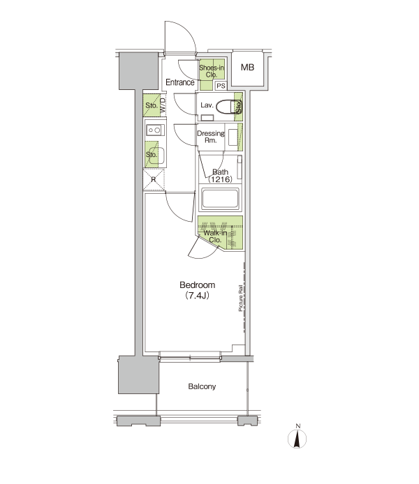
C
TYPE
専有面積
25
.60
m
2
(約7.74坪)
1
K
バルコニー面積/4.34㎡(約1.31坪)
洋室約7.4畳
シューズインクローゼット
洗面・トイレ独立
2口コンロ
バスルーム1216サイズ
=収納
※掲載の図面は計画段階のものであり、施工上の理由などで変更することがございます。
洋室約7.4畳
シューズインクローゼット
洗面・トイレ独立
2口コンロ
バスルーム1216サイズ
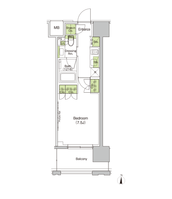
D
TYPE
専有面積
25
.60
m
2
(約7.74坪)
1
K
バルコニー面積/6.04㎡(約1.82坪)
洋室約7.5畳
シューズインクローゼット
2口コンロ
バスルーム1216サイズ
=収納
※掲載の図面は計画段階のものであり、施工上の理由などで変更することがございます。
洋室約7.5畳
シューズインクローゼット
2口コンロ
バスルーム1216サイズ