間取り|三菱地所レジデンスの賃貸マンション「ザ・パークハビオ 上北沢」
三菱地所レジデンスの賃貸マンション
空室情報
TOP
ザ・パークハビオ 上北沢 トップ
ROOM PLAN
間取り
GALLERY
ギャラリー
EQUIPMENT
設備仕様
MAP
周辺案内
サイトポリシー/個人情報保護方針
三菱地所のレジデンスクラブ
お問い合わせは
三菱地所ハウスネット株式会社まで
03-5304-3081
「ザ・パークハビオ」ブランドサイト
空室情報
ROOM PLAN
間取り
ザ・パークハビオ 上北沢 トップ
間取り
1R
1K
1DK
1LDK
1SLDK
2LDK
平面図
空室情報
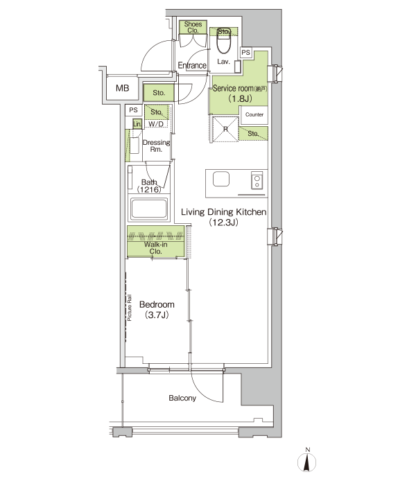
H
TYPE
1
SLDK
40
.91㎡
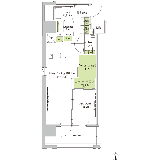
I
TYPE(2F)
1
SLDK
42
.58㎡
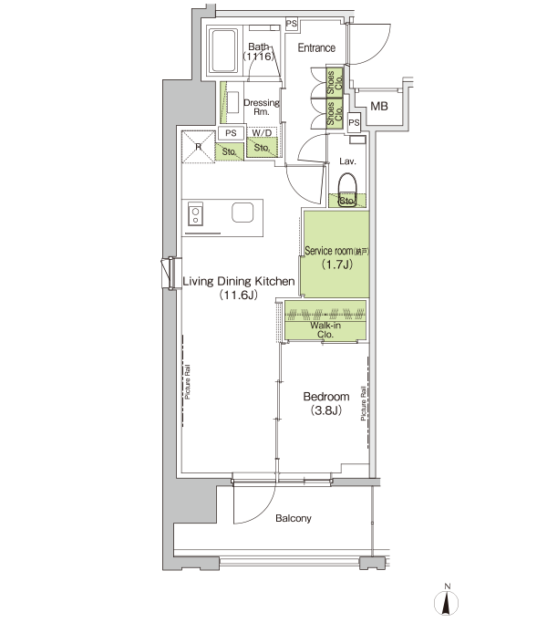
I
TYPE(3〜12F)
1
SLDK
41
.54㎡
空室情報
H
TYPE
専有面積
40
.91
m
2
(約12.37坪)
1
SLDK
バルコニー面積/7.40㎡(約2.23坪)
LDK約12.3畳
ウォークインクローゼット
洗面・トイレ独立
カウンターキッチン
2口コンロ
バスルーム1216サイズ
=収納
※掲載の図面は計画段階のものであり、施工上の理由などで変更することがございます。
LDK約12.3畳
ウォークインクローゼット
洗面・トイレ独立
カウンターキッチン
2口コンロ
バスルーム1216サイズ
I
TYPE(2F)
専有面積
42
.58
m
2
(約12.88坪)
1
SLDK
バルコニー面積/7.40㎡(約2.23坪)
LDK約11.6畳
ウォークインクローゼット
洗面・トイレ独立
カウンターキッチン
2口コンロ
バスルーム1116サイズ
=収納
※掲載の図面は計画段階のものであり、施工上の理由などで変更することがございます。
LDK約11.6畳
ウォークインクローゼット
洗面・トイレ独立
カウンターキッチン
2口コンロ
バスルーム1116サイズ
I
TYPE(3〜12F)
専有面積
41
.54
m
2
(約12.56坪)
1
SLDK
バルコニー面積/7.40㎡(約2.23坪)
LDK約11.6畳
ウォークインクローゼット
洗面・トイレ独立
カウンターキッチン
2口コンロ
バスルーム1116サイズ
=収納
※掲載の図面は計画段階のものであり、施工上の理由などで変更することがございます。
LDK約11.6畳
ウォークインクローゼット
洗面・トイレ独立
カウンターキッチン
2口コンロ
バスルーム1116サイズ