間取り|三菱地所レジデンスの賃貸マンション「ザ・パークハビオ 都島テラス」

三菱地所レジデンスの賃貸マンション

べる 6つのカラースキーム

インテリアから衣食住まで総合的に提案しているライフスタイルカンパニー、株式会社ACTUSとのコラボレーションが実現。
一部専有居室部分のカラーコーディネートをACTUSが監修しています。
フロア毎に6種類のカラースキームをご用意。
同じタイプでもお好みのカラーをお選びいただけます。

インテリアから衣食住まで総合的に提案しているライフスタイルカンパニー、株式会社ACTUSとのコラボレーションが実現。
一部専有居室部分のカラーコーディネートをACTUSが監修しています。
フロア毎に6種類のカラースキームをご用意。
同じタイプでもお好みのカラーをお選びいただけます。

カラースキームのタイル
WHITE
WHITE
MEDIUM
MEDIUM
DARK
DARK
ACTUS
Scheme-1
ACTUS Scheme-1
ACTUS
Scheme-2
ACTUS Scheme-2
ACTUS
Scheme-3
ACTUS Scheme-3

ットとの快適な
くらしを叶えるプラン

A2タイプとBタイプの一部住戸では、ペットとの共生を叶えるコンセプトプランをご用意。
ペットの爪によるひっかき傷に強いフローリング・壁クロスやキャットウォークを採用し、収納下部にペット用のトイレ設置に便利なスペースを設ける等、様々な工夫を凝らしています。

image photo

image photo

図面
キャットウォール(マグネットで着脱可能)

A : キャットウォール(マグネットで着脱可能)

くぐり戸

B : くぐり戸

ペットスペース(Bタイプ(604・1004号室))

C : ペットスペース(Bタイプ(604・1004号室))

ひっかきに強いフローリング・壁クロス

D : ひっかきに強いフローリング・壁クロス

キャットウォーク(A2タイプ(603・1003号室))

キャットウォーク(A2タイプ(603・1003号室))

A1TYPE
1DK27.12㎡
A2TYPE
1DK27.12㎡
BTYPE
1DK28.49㎡
A1TYPE
専有面積
27.12m2(約8.20坪)1DK バルコニー面積/3.48㎡
DK 5.6畳
ベッドルーム 3.5畳
広い人造大理石洗面カウンター
豊富な収納スペース
=収納
※掲載の図面は計画段階のものであり、施工上の理由などで変更することがございます。
A1 type
DK 5.6畳
ベッドルーム 3.5畳
広い人造大理石洗面カウンター
豊富な収納スペース
A2TYPE
専有面積
27.12m2(約8.20坪)1DK バルコニー面積/3.48㎡
DK 5.6畳
広い人造大理石洗面カウンター
ウォークインクローゼット
ペット共生コンセプトプラン(一部住戸)
=収納
※掲載の図面は計画段階のものであり、施工上の理由などで変更することがございます。
A2 type
DK 5.6畳
広い人造大理石洗面カウンター
ウォークインクローゼット
ペット共生コンセプトプラン(一部住戸)
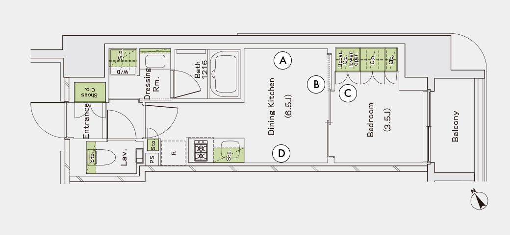
BTYPE
専有面積
28.49m2(約8.61坪)1DK バルコニー面積/3.48㎡
DK 6.5畳
角住戸
DKマグネット壁パネル
ペット共生コンセプトプラン(一部住戸)
=収納
※掲載の図面は計画段階のものであり、施工上の理由などで変更することがございます。
B type
DK 6.5畳
角住戸
DKマグネット壁パネル
ペット共生コンセプトプラン(一部住戸)