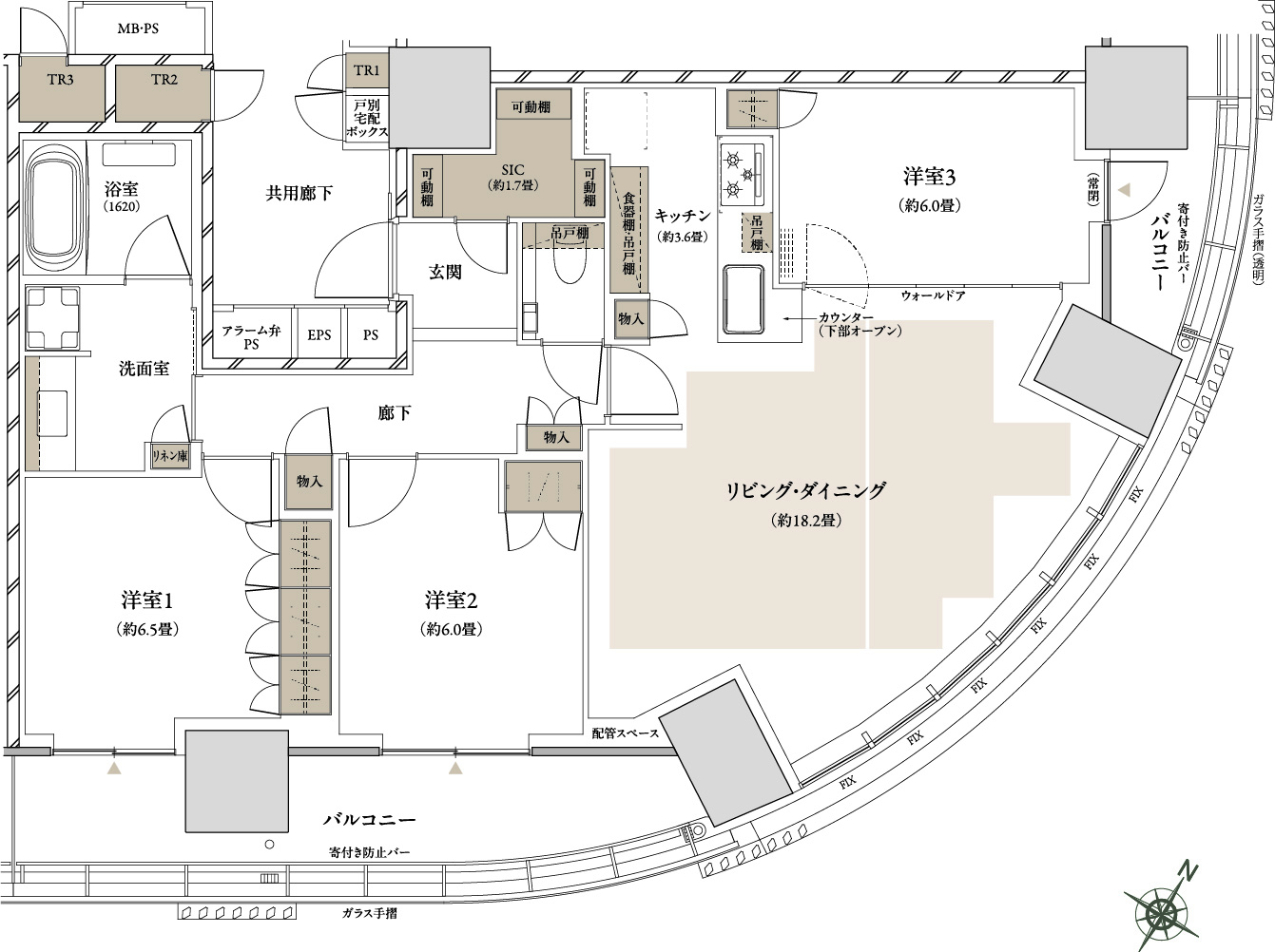
ポートレートモード(縦置き)表示でご覧ください。

S-94Atype

3LDK+SIC+3TR

専有面積/94.22㎡(約28.50坪)

※トランクルーム面積2.16㎡(約0.65坪) ・
戸別宅配ボックス面積0.42㎡(約0.12坪)含む

  • バルコニー面積/18.74㎡(約5.66坪)

床暖房範囲 収納

WIC:ウォークインクローゼット SIC:シューズインクローゼット TR:トランクルーム

※掲載の図面は、計画段階のもので変更になる場合がございます。詳細は図面集をご参照ください。