ATYPE
2LDK(1LDK+DEN)59.52㎡
BTYPE
2LDK(1LDK+DEN)64.35㎡
ETYPE
2LDK(1LDK+DEN)51.05㎡
JTYPE
2LDK(1LDK+DEN)54.95㎡
LTYPE
2LDK(1LDK+DEN)54.82㎡
PTYPE
2LDK(1LDK+DEN)63.56㎡
TTYPE
2LDK(1LDK+DEN)60.13㎡
ATYPE
専有面積
59.52m2(約18.00坪)2LDK(1LDK+DEN) バルコニー面積/5.81㎡(約1.75坪)
59.52m2(約18.00坪)2LDK(1LDK+DEN) バルコニー面積/5.81㎡(約1.75坪)
南西角住戸
LDK12.8畳
シューズインクローゼット
ウォークインクローゼット
バスルーム1317サイズ
※掲載の図面は計画段階のものであり、施工上の理由などで変更することがございます。
南西角住戸
LDK12.8畳
シューズインクローゼット
ウォークインクローゼット
バスルーム1317サイズ
BTYPE
専有面積
64.35m2(約19.46坪)2LDK(1LDK+DEN) バルコニー面積/7.64㎡(約2.31坪)
64.35m2(約19.46坪)2LDK(1LDK+DEN) バルコニー面積/7.64㎡(約2.31坪)
LDK13.9畳
各居室6畳以上
シューズインクローゼット
各居室ウォークインクローゼット
バスルーム1620サイズ
※掲載の図面は計画段階のものであり、施工上の理由などで変更することがございます。
LDK13.9畳
各居室6畳以上
シューズインクローゼット
各居室ウォークインクローゼット
バスルーム1620サイズ
ETYPE
専有面積
51.05m2(約15.44坪)2LDK(1LDK+DEN) バルコニー面積/5.64㎡(約1.70坪)
51.05m2(約15.44坪)2LDK(1LDK+DEN) バルコニー面積/5.64㎡(約1.70坪)
北東角住戸
LDK11.3畳
ウォークインクローゼット
洗面・トイレ独立
バスルーム1317サイズ
※掲載の図面は計画段階のものであり、施工上の理由などで変更することがございます。
北東角住戸
LDK11.3畳
ウォークインクローゼット
洗面・トイレ独立
バスルーム1317サイズ
JTYPE
専有面積
54.95m2(約16.62坪)2LDK(1LDK+DEN) バルコニー面積/6.45㎡(約1.95坪)
54.95m2(約16.62坪)2LDK(1LDK+DEN) バルコニー面積/6.45㎡(約1.95坪)
東南角住戸
LDK12.0畳
ウォークインクローゼット
シューズインクローゼット
バスルーム1317サイズ
※掲載の図面は計画段階のものであり、施工上の理由などで変更することがございます。
東南角住戸
LDK12.0畳
ウォークインクローゼット
シューズインクローゼット
バスルーム1317サイズ
LTYPE
専有面積
54.82m2(約16.58坪)2LDK(1LDK+DEN) バルコニー面積/5.81㎡(約1.75坪)
54.82m2(約16.58坪)2LDK(1LDK+DEN) バルコニー面積/5.81㎡(約1.75坪)
南西角住戸
LDK12.5畳
ウォークインクローゼット
シューズインクローゼット
バスルーム1317サイズ
※掲載の図面は計画段階のものであり、施工上の理由などで変更することがございます。
南西角住戸
LDK12.5畳
ウォークインクローゼット
シューズインクローゼット
バスルーム1317サイズ
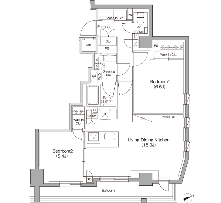
PTYPE
専有面積
63.56m2(約19.22坪)2LDK(1LDK+DEN) バルコニー面積/8.41㎡(約2.54坪)
63.56m2(約19.22坪)2LDK(1LDK+DEN) バルコニー面積/8.41㎡(約2.54坪)
北東角住戸
LDK15.0畳
各居室ウォークインクローゼット
シューズインクローゼット
バスルーム1317サイズ
※掲載の図面は計画段階のものであり、施工上の理由などで変更することがございます。
北東角住戸
LDK15.0畳
各居室ウォークインクローゼット
シューズインクローゼット
バスルーム1317サイズ
TTYPE
専有面積
60.13m2(約18.18坪)2LDK(1LDK+DEN) バルコニー面積/8.33㎡(約2.51坪)
60.13m2(約18.18坪)2LDK(1LDK+DEN) バルコニー面積/8.33㎡(約2.51坪)
北東角住戸
LDK17.0畳
各居室ウォークインクローゼット
シューズインクローゼット
バスルーム1317サイズ
※掲載の図面は計画段階のものであり、施工上の理由などで変更することがございます。
北東角住戸
LDK17.0畳
各居室ウォークインクローゼット
シューズインクローゼット
バスルーム1317サイズ