間取り|三菱地所レジデンスの賃貸マンション「ザ・パークハビオ 新高円寺」
三菱地所レジデンスの賃貸マンション
空室情報
TOP
ザ・パークハビオ 新高円寺 トップ
ROOM PLAN
間取り
GALLERY
ギャラリー
EQUIPMENT
設備仕様
MAP
周辺案内
サイトポリシー/個人情報保護方針
三菱地所のレジデンスクラブ
お問い合わせは
三菱地所ハウスネット株式会社まで
03-5304-3081
「ザ・パークハビオ」ブランドサイト
空室情報
ROOM PLAN
間取り
ザ・パークハビオ 新高円寺 トップ
間取り
1R
1K
1LDK
2LDK
平面図
空室情報
P
TYPE
2
LDK
44
.20㎡
R
TYPE
2
LDK
48
.47㎡
S
TYPE
2
LDK
48
.59㎡
T
TYPE
2
LDK
73
.45㎡
空室情報
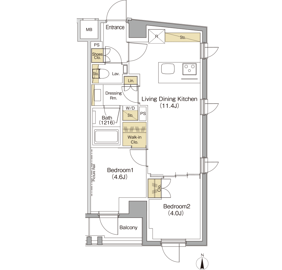
P
TYPE
専有面積
44
.20
m
2
(約13.37坪)
2
LDK
バルコニー面積/2.91㎡(約0.88坪)
LDK11.4畳
居室4.6畳、4.0畳
ウォークインクローゼット
バスルーム1216サイズ
三ツ口ガスコンロ
=収納
※掲載の図面は計画段階のものであり、施工上の理由などで変更することがございます。
LDK11.4畳
居室4.6畳、4.0畳
ウォークインクローゼット
バスルーム1216サイズ
三ツ口ガスコンロ
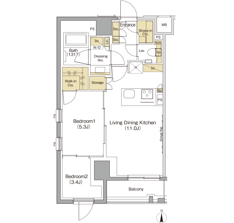
R
TYPE
専有面積
48
.47
m
2
(約14.66坪)
2
LDK
バルコニー面積/3.72㎡(約1.12坪)
LDK11.0畳
居室5.3畳、3.4畳
ウォークインクローゼット
バスルーム1317サイズ
三ツ口ガスコンロ
=収納
※掲載の図面は計画段階のものであり、施工上の理由などで変更することがございます。
LDK11.0畳
居室5.3畳、3.4畳
ウォークインクローゼット
バスルーム1317サイズ
三ツ口ガスコンロ
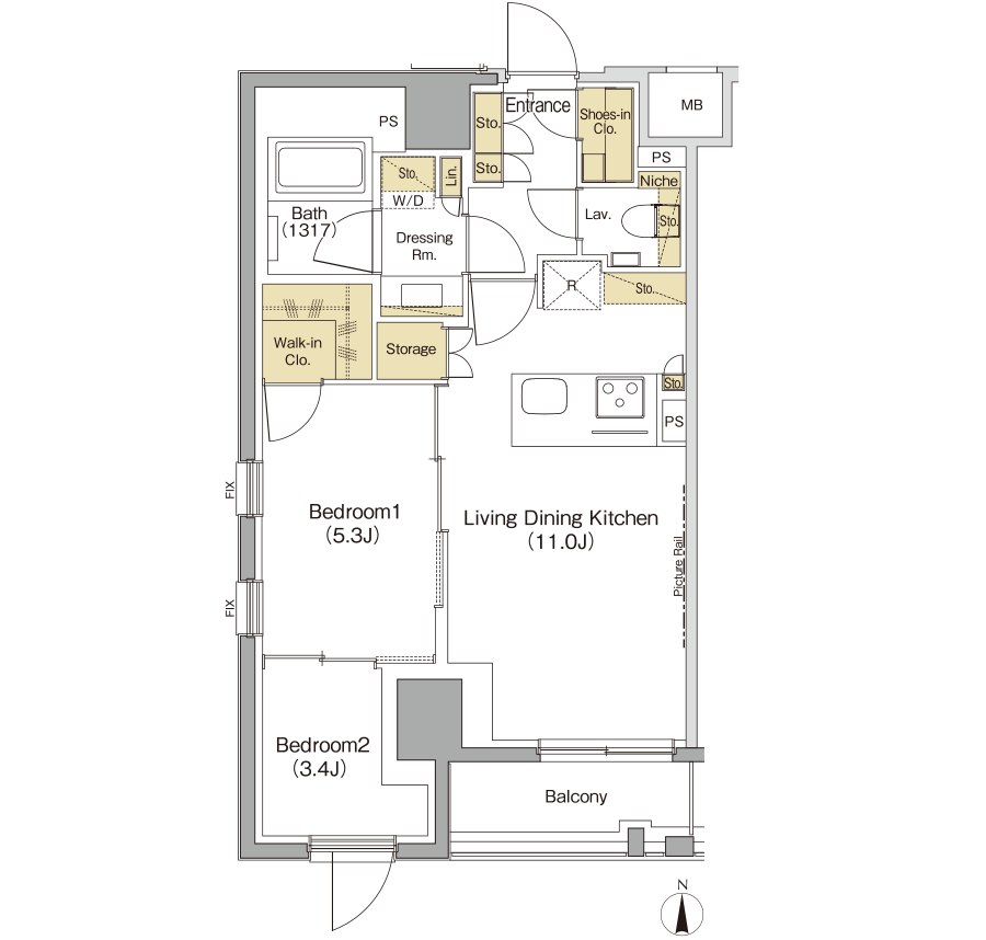
S
TYPE
専有面積
48
.59
m
2
(約14.69坪)
2
LDK
バルコニー面積/3.72㎡(約1.12坪)
LDK11.0畳
居室5.3畳、3.4畳
ウォークインクローゼット
バスルーム1317サイズ
三ツ口ガスコンロ
=収納
※掲載の図面は計画段階のものであり、施工上の理由などで変更することがございます。
LDK11.0畳
居室5.3畳、3.4畳
ウォークインクローゼット
バスルーム1317サイズ
三ツ口ガスコンロ
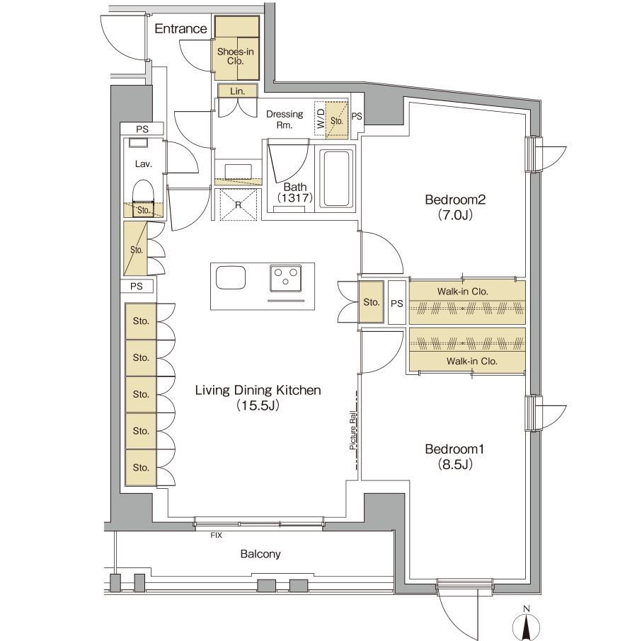
T
TYPE
専有面積
73
.45
m
2
(約22.21坪)
2
LDK
バルコニー面積/6.57㎡(約1.98坪)
LDK15.5畳
居室8.5畳、7.0畳
ウォークインクローゼット×2
バスルーム1317サイズ
三ツ口ガスコンロ
=収納
※掲載の図面は計画段階のものであり、施工上の理由などで変更することがございます。
LDK15.5畳
居室8.5畳、7.0畳
ウォークインクローゼット×2
バスルーム1317サイズ
三ツ口ガスコンロ