間取り|三菱地所レジデンスの賃貸マンション「ザ・パークハビオ 大森町」
三菱地所レジデンスの賃貸マンション
空室情報
TOP
ザ・パークハビオ 大森町 トップ
ROOM PLAN
間取り
GALLERY
ギャラリー
EQUIPMENT
設備仕様
LIFESTYLE
ライフスタイル
MAP
周辺案内
サイトポリシー/個人情報保護方針
三菱地所のレジデンスクラブ
お問い合わせは
三菱地所ハウスネット株式会社まで
03-3400-2313
「ザ・パークハビオ」ブランドサイト
空室情報
ROOM PLAN
間取り
ザ・パークハビオ 大森町 トップ
間取り
VIEW
西方向の眺望
<現地15階より>
昼
夜
東方向の眺望
<現地15階より>
昼
夜
1R
1DK
1LDK
2LDK
平面図
空室情報
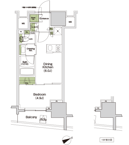
A1
TYPE
1
DK
26
.66㎡
C
TYPE
1
DK
30
.06㎡
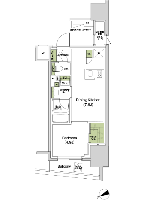
D
TYPE
1
DK
30
.02㎡
E
TYPE
1
DK
27
.97㎡
空室情報
A1
TYPE
専有面積
26
.66
m
2
(約8.06坪)
1
DK
バルコニー面積/3.35㎡(約1.01坪)
ダイニングキッチン7.1畳
ベッドルーム3.2畳
バストイレ別
=収納
※掲載の図面は計画段階のものであり、施工上の理由などで変更することがございます。
ダイニングキッチン7.1畳
ベッドルーム3.2畳
バストイレ別
C
TYPE
専有面積
30
.06
m
2
(約9.09坪)
1
DK
バルコニー面積/3.98㎡(約1.20坪)
ダイニングキッチン7.6畳
ベッドルーム4.9畳
バストイレ別
ウォークインクロゼット
=収納
※掲載の図面は計画段階のものであり、施工上の理由などで変更することがございます。
ダイニングキッチン7.6畳
ベッドルーム4.9畳
バストイレ別
ウォークインクロゼット
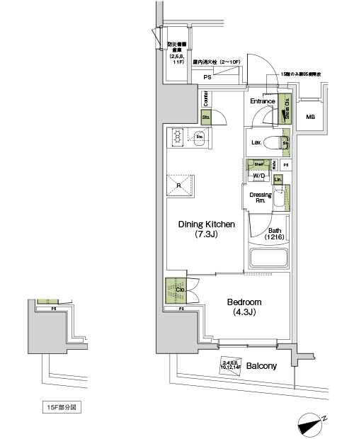
D
TYPE
専有面積
30
.02
m
2
(約9.08坪)
1
DK
バルコニー面積/4.16㎡(約1.25坪)
ダイニングキッチン7.3畳
ベッドルーム4.3畳
バストイレ別
=収納
※掲載の図面は計画段階のものであり、施工上の理由などで変更することがございます。
ダイニングキッチン7.3畳
ベッドルーム4.3畳
バストイレ別
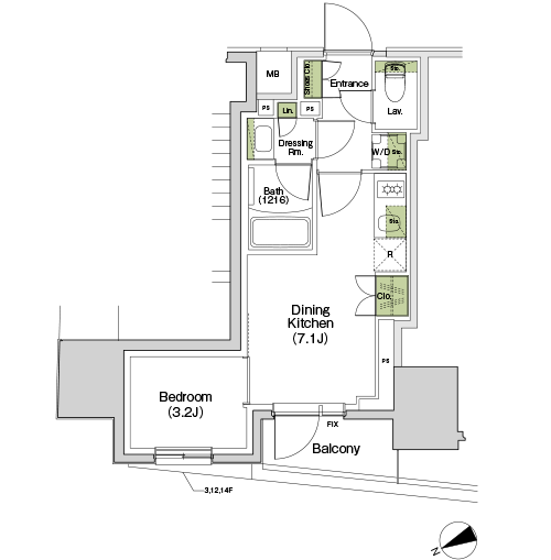
E
TYPE
専有面積
27
.97
m
2
(約8.46坪)
1
DK
バルコニー面積/4.79㎡(約1.44坪)
ダイニングキッチン6.0畳
ベッドルーム4.9畳
バストイレ別
=収納
※掲載の図面は計画段階のものであり、施工上の理由などで変更することがございます。
ダイニングキッチン6.0畳
ベッドルーム4.9畳
バストイレ別