ザ・パークハビオ SOHO 南青山

お問合せは
三菱地所ハウスネット株式会社まで

10:00~17:00(定休日:毎週水・日曜日)
※定休⽇以外に年末年始、GW、および夏季の休業があります。

03-3400-2313

ザ・パークハビオ SOHO 南青山

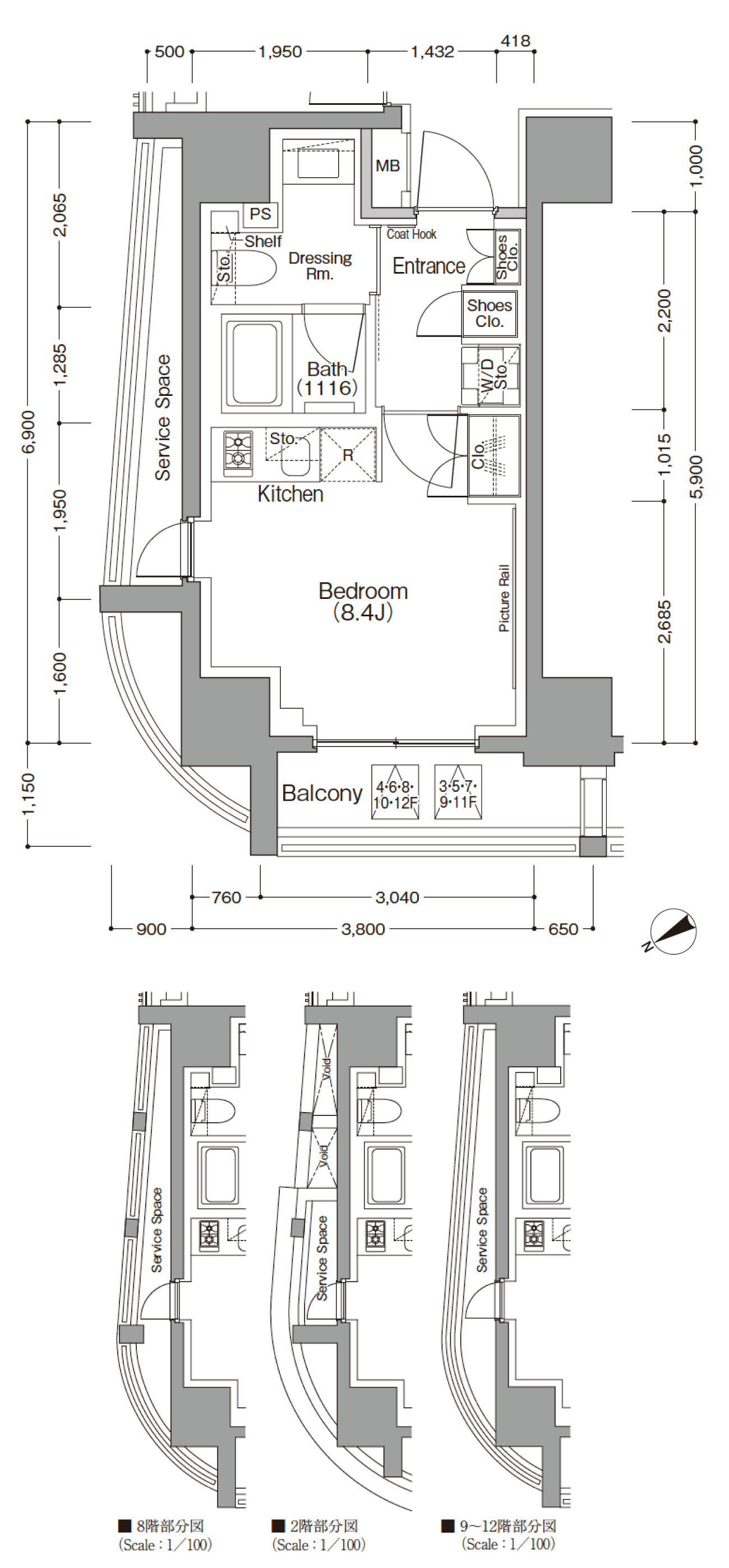
ROOM PLAN

1R / G TYPE


住戸専有面積
24.37㎡(約7.37坪)


バルコニー面積
4.24㎡(約1.28坪)

サービススペース面積
1.85㎡(約0.55坪)[2階]
3.71㎡(約1.12坪)[3〜7階]
4.97㎡(約1.50坪)[8〜12階]


●居室8.4畳
●バスルーム1116サイズ

1R /G TYPE

単位:mm

BACK TO ROOM PLAN