ポートレートモード(縦置き)表示でご覧ください。
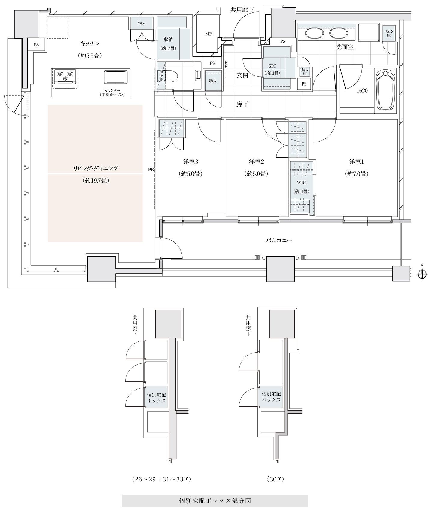
R-102I
3
LDK+ST+WIC+SIC
専有面積:
101
.48㎡
(約30.69坪)
個別宅配ボックス面積:0.78㎡
(約0.23坪)
合計専有面積:
102
.26㎡
(約30.93坪)
バルコニー面積:
14
.81㎡
(約4.48坪)
ST:ストレージ(収納)、WIC:ウォークインクローゼット、SIC:シューズインクローゼット
※掲載の図面は、計画段階のもので変更になる場合がございます。詳細は図面集をご参照ください。
間取り一覧に戻る