ポートレートモード(縦置き)表示でご覧ください。
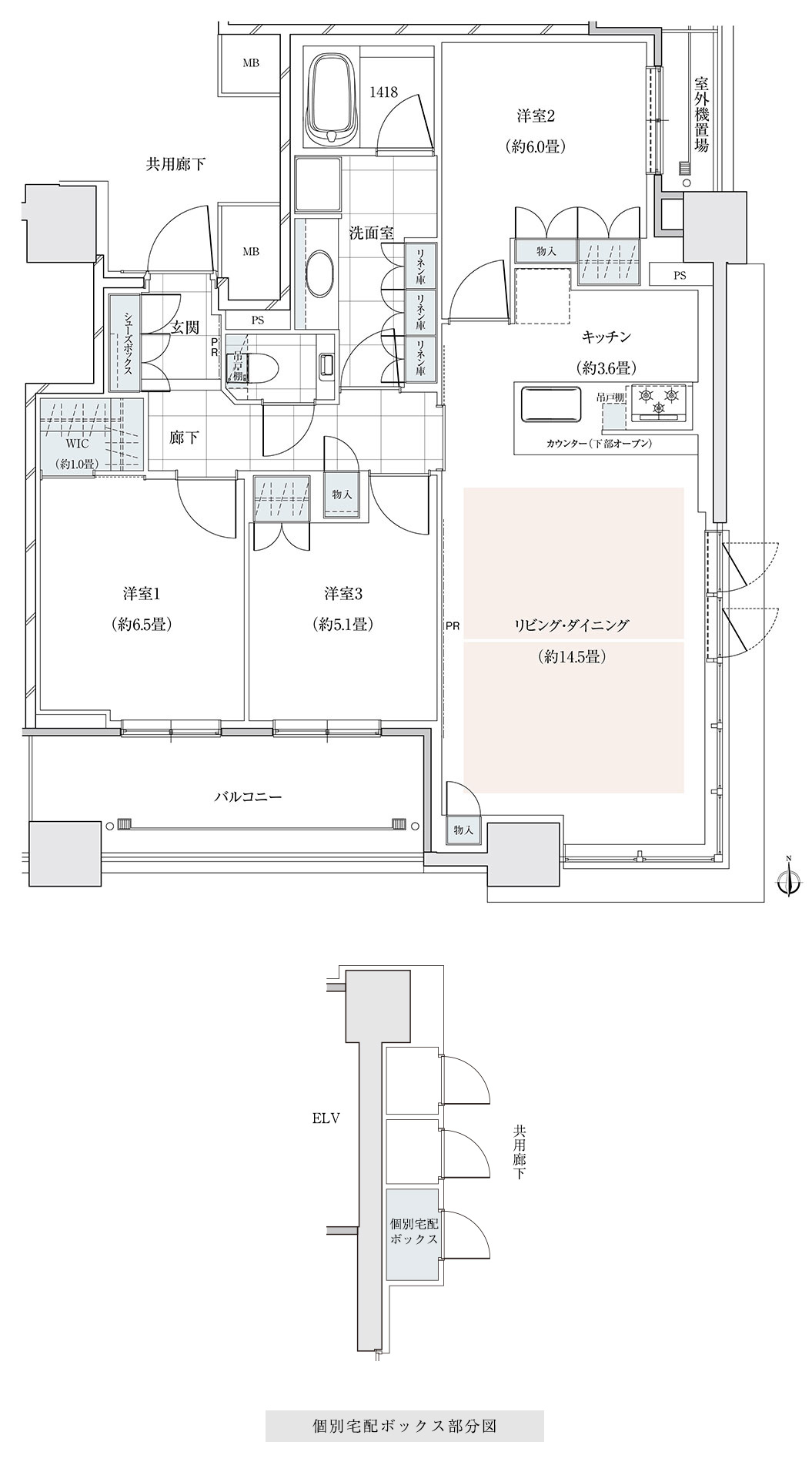
G-83L
3
LDK+WIC
専有面積:
82
.26㎡
(約24.88坪)
個別宅配ボックス面積:1.18㎡
(約0.35坪)
合計専有面積:
83
.44㎡
(約25.24坪)
バルコニー面積:
9
.54㎡
(約2.88坪)
室外機置場面積:
2
.35㎡
(約0.71坪)
WIC:ウォークインクローゼット
※掲載の図面は、計画段階のもので変更になる場合がございます。詳細は図面集をご参照ください。
間取り一覧に戻る