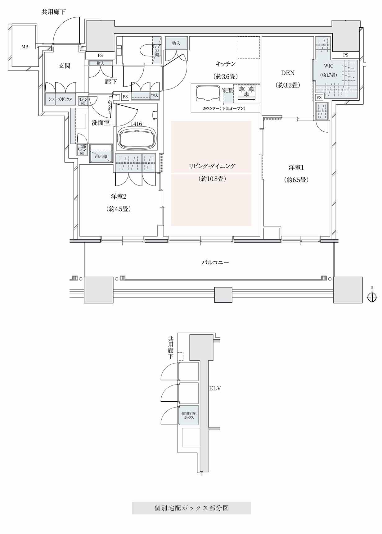
ポートレートモード(縦置き)表示でご覧ください。
G-68H
2
LDK+DEN+WIC
専有面積:
67
.84㎡
(約20.52坪)
個別宅配ボックス面積:0.74㎡
(約0.22坪)
合計専有面積:
68
.58㎡
(約20.74坪)
バルコニー面積:
14
.84㎡
(約4.48坪)
WIC:ウォークインクローゼット
※掲載の図面は、計画段階のもので変更になる場合がございます。詳細は図面集をご参照ください。
間取り一覧に戻る