

掲載の眺望写真は現地13階相当の高さから撮影(2023年6月)したもので、実際の住戸からの眺望とは異なります。眺望・景観は、各階・各住戸により異なり、今後周辺環境の変化に伴い将来にわたって保証されるものではありません。
+1ルームのゆとりが
あるからこそできる
4LDKの空間が
叶える暮らし。
- あとから変えられない住まいの“広さ” 。
- 購入後、「もっと広い住まいにしたら良かった」と後悔される方は少なくありません。
ライフスタイルやライフステージの変化に柔軟に対応できる4LDKなら、
すべての世代のライフスタイルにマッチするゆとりある暮らしを実現することができます。
※掲載の写真は、モデルルーム(Eタイプ・メニュープラン・カラーセレクト:パウダーオーク)を撮影(2024年9月)したもので実際とは異なります。また、エアコン・造作家具・照明・装飾用小物等オプション(有償)も含まれております。家具・調度品等は販売価格に含まれておりません。
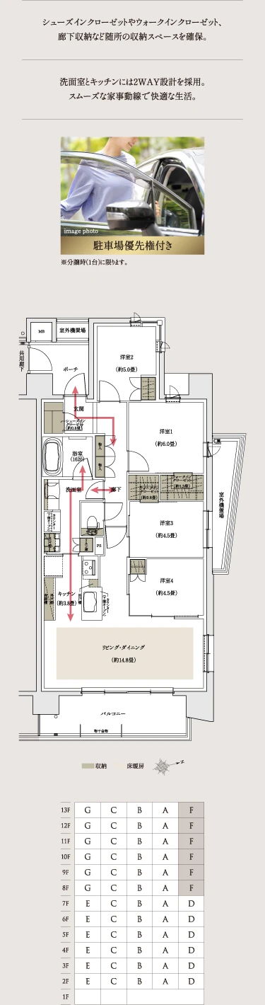
WIC=ウォークインクローゼット、SIC=シューズインクローゼット
※掲載の間取図は計画段階のもので変更になる場合があります。詳細は図面集をご覧ください。
※メニュープラン・カラーセレクト、およびオプション(有償)には申込期限がございます。
※掲載の間取図は計画段階のもので変更になる場合があります。詳細は図面集をご覧ください。
※メニュープラン・カラーセレクト、およびオプション(有償)には申込期限がございます。











