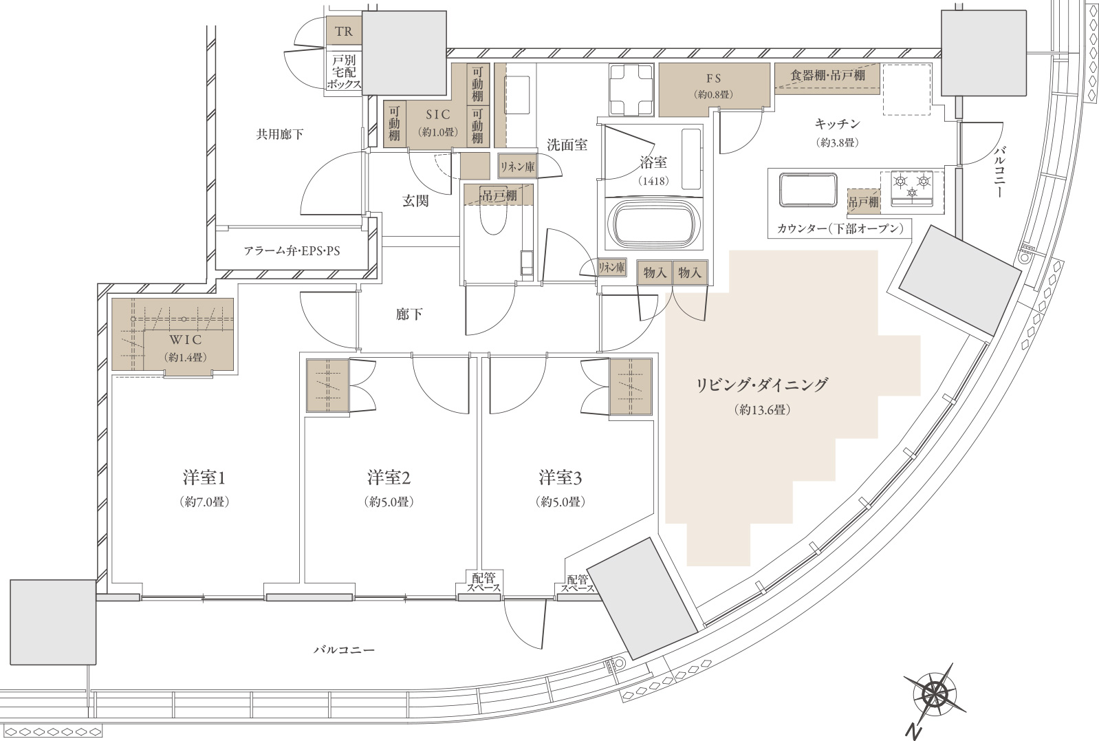
S-80Atype
3LDK+WIC+SIC+FS+TR
専有面積/80.09㎡(約24.22坪)
※トランクルーム面積0.32㎡(約0.09坪) ・
戸別宅配ボックス面積0.42㎡(約0.12坪)含む
- バルコニー面積/17.81㎡(約5.38坪)
床暖房範囲 収納
WIC:ウォークインクローゼット SIC:シューズインクローゼット FS:フリーストレージ TR:トランクルーム
※掲載の図面は、計画段階のもので変更になる場合がございます。詳細は図面集をご参照ください。
※「リビング・ダイニング、キッチン、洋室2」は、建築基準法の居室要件を満たすために、床面において50ルクス以上の照度を確保できる照明器具の設置が必要です。