ポートレートモード(縦置き)表示でご覧ください。

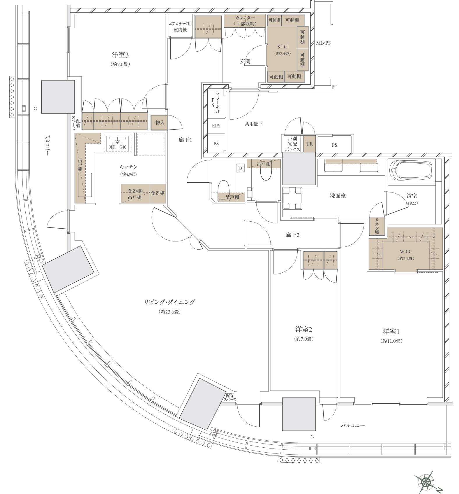
S-135Atype

3LDK+WIC+SIC+TR

専有面積/135.76㎡(約41.06坪)

※トランクルーム面積0.32㎡(約0.09坪) ・
戸別宅配ボックス面積0.42㎡(約0.12坪)含む

  • バルコニー面積/27.52㎡(約8.32坪)

収納

WIC:ウォークインクローゼット SIC:シューズインクローゼット TR:トランクルーム

※掲載の図面は、計画段階のもので変更になる場合がございます。詳細は図面集をご参照ください。