ポートレートモード(縦置き)表示でご覧ください。

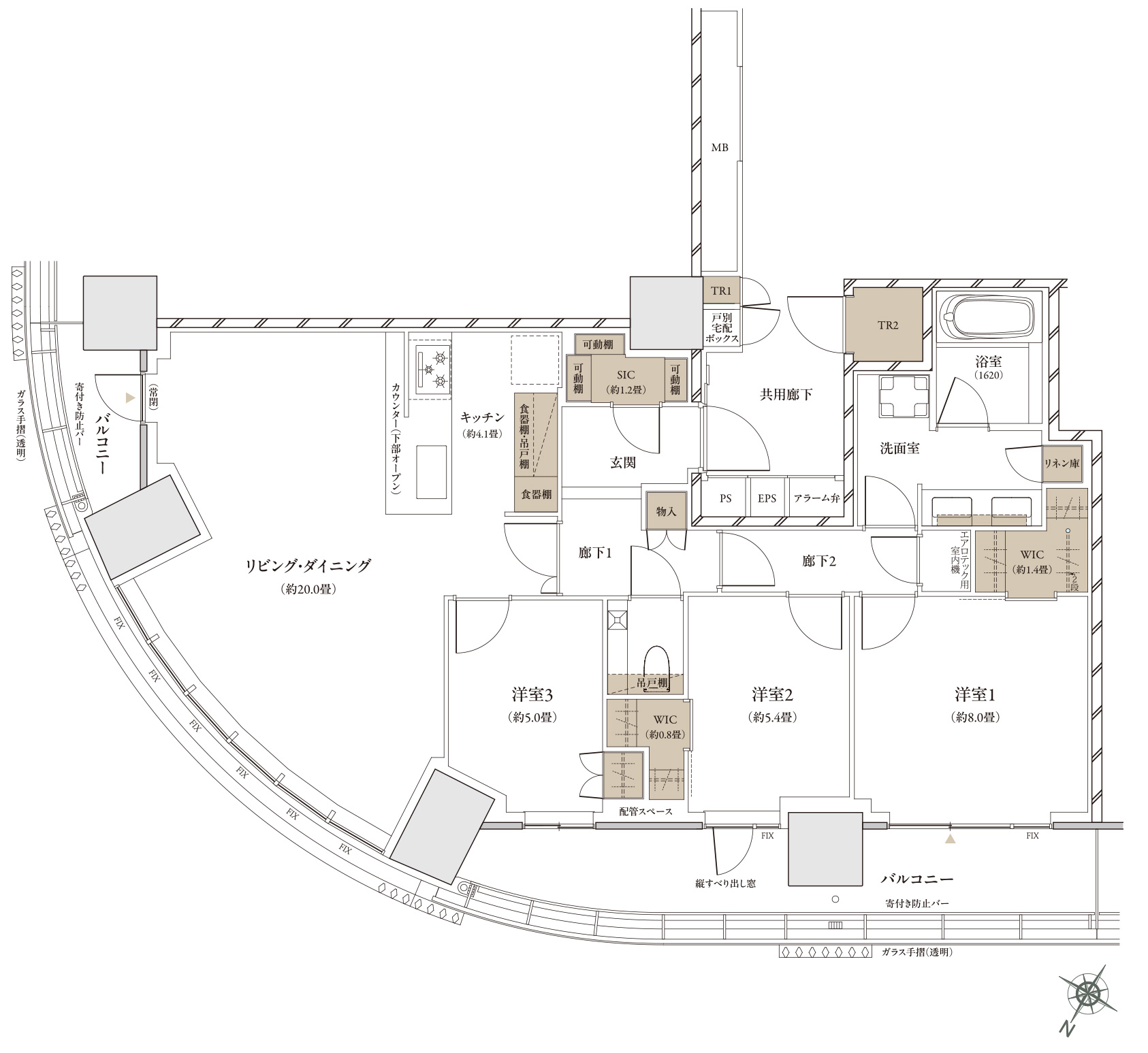
S-101Atype

3LDK+2WIC+SIC+2TR

専有面積/101.27㎡(約30.63坪)

※トランクルーム面積1.80㎡(約0.54坪) ・
戸別宅配ボックス面積0.42㎡(約0.12坪)含む

  • バルコニー面積/20.92㎡(約6.32坪)

収納

WIC:ウォークインクローゼット SIC:シューズインクローゼット TR:トランクルーム

※掲載の図面は、計画段階のもので変更になる場合がございます。詳細は図面集をご参照ください。