-
#118 これからのリノベーションについて vol.2 ~キッチンと洗面化粧台を一緒にしちゃいました!
update:2022/03/22
-
#117 これからのリノベーションについて vol.1 ~クローゼットの使い方を考える
update:2021/09/02
-
A044「玄関収納の使い方・バルコニーでの過ごし方について」のアンケート報告
update:2023/04/03
-
update:2023/03/31
-
update:2016/03/02
-
M28 食器棚について 〜入居者アンケートと訪問調査の中から
update:2015/12/24
-
update:2019/02/06
-
RT015「夫婦二人暮らしのくつろぎ空間」(Plan 17)
update:2018/10/23
-
J006 リノベーションで自由度のあるクローゼットを作りました
update:2022/01/26
-
update:2016/04/27
RS011 隠す収納で住まう空間を広く使う
ご相談内容
衣類などが収納しきれず、また物も多いのと、日当たりが悪いこともあり、子供の寝室にと思っていた部屋が物置状態になっています。 外に出ている収納ではなく、隠す収納を上手に使い、部屋数にはこだわらないので、遊び心がありつつ、空間を広く使える部屋になればと思います。
お客様
夫婦と子供1人の3人家族
物件状況
71㎡
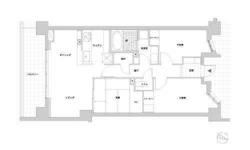
現在の間取り

三菱地所のリフォーム 設計担当
首藤 牧子(しゅとう まきこ)
プロフィール
三菱地所ホーム株式会社 マンションリフォーム事業部
・二級建築士
・宅地建物取引士
・マンションリフォームマネージャー
「こんな暮らしがしたい」という漠然とした思いから、お話を重ねていくうちに徐々にかたちにしていくプロセスで、理想のお住まいをご提供できればと思います。
三菱地所のリフォーム設計チームからの3つの提案
提案1「水廻りはそのままで収納と土間をプラスしたプラン」
収納しきれないものを隠して収納するために、2つの工夫をしました。ひとつは、たたみの小上がりです。40cm上がったたたみの下は、3畳分の床下収納を作りました。 そして子供室と主寝室の間には、家族みんなで使うWICを配置し、子供室からも主寝室からもアクセス出来るようになっています。玄関側は土間スペースとして全てオープンにしました。土間から上がれる和室、土間と子供室との段差があることで腰かけたり、空間の違いにメリハリもつくるでしょう。主寝室はリビング側に面しています。リビングに近い部屋が誰の部屋が良いかは、考えどころです。子供が大きくなったらリビングに近い部屋は子供室にして、和室と子供室をご夫婦の寝室にするなど、将来的な可変性も考慮しています。
提案2「リビングの真ん中に大きな緑を置いたプラン」
子供のベッドの下は収納になっています。高さは1m20cmと少し低いですが、多くのものが収納できます。はしごで上がる中2階のベッドは子供には楽しいものでしょう。またその収納とは別に大きめのWICも設けて、家族の衣類を収納できるようにしました。玄関は土間空間になっていて、自転車なども置けます。外で使うものなどを収納できるようにもしています。子供のベッドからリビングへ続く部分は、壁面側は壁面収納にし、反対側はキッチンに向かって開放的なスタディコーナーにしています。リビングには大きな緑を配置しています。家の中に緑を植えて暮らしてみても、楽しいかも知れません。家事動線については、キッチンから洗面室へは動線をつなげて家事を効率的にできるようにしています。
提案3「玄関からバルコニーまでをひとつづきにしたプラン」
水廻りや個室を片側に配置し、残りの半分をひとつづきの空間にしました。 キッチンを壁側におくことで、しきりのない大空間が生まれます。リビング、ダイニング、セカンドリビングなど、広々とした空間を自由に使うことができます。キッチン前のカウンターでは簡単な食事や、子供が宿題をしたりするのも良いでしょう。玄関からバルコニーまで空間がつながることで明るく、風も通り抜ける気持ちの良い空間ができます。
※これらのプランは、建物の状況や管理規約等により実施できない場合があります。






