-
#118 これからのリノベーションについて vol.2 ~キッチンと洗面化粧台を一緒にしちゃいました!
update:2022/03/22
-
#117 これからのリノベーションについて vol.1 ~クローゼットの使い方を考える
update:2021/09/02
-
A044「玄関収納の使い方・バルコニーでの過ごし方について」のアンケート報告
update:2023/04/03
-
update:2023/03/31
-
update:2016/03/02
-
M28 食器棚について 〜入居者アンケートと訪問調査の中から
update:2015/12/24
-
update:2019/02/06
-
RT015「夫婦二人暮らしのくつろぎ空間」(Plan 17)
update:2018/10/23
-
J006 リノベーションで自由度のあるクローゼットを作りました
update:2022/01/26
-
update:2016/04/27

M28 食器棚について 〜入居者アンケートと訪問調査の中から
みなさん、食器棚はどのようなものをお持ちでしょうか。また今お持ちのものに満足しているでしょうか。
今回、三菱地所レジデンスのマンションへ入居している方を対象にアンケートや取材をしてみると、当社で用意している造りつけの食器棚(オプション家具)を選んでいる人は29.7%と少数でした。45.6%の人は、ご自身で選んだ置き家具を購入しています。オプション家具はまだまだ改善が必要そうです。

オプション家具はキッチンの天板や面材と合わせて造る為、キッチン全体に統一感が出ます。また、サイズも住戸ごとに合わせるのでぴったりと納まります。しかし、どうも多くの方は、そうした点は大きなメリットと感じていないようです。また、形はオプションでも市販のものでもほぼ同じです。
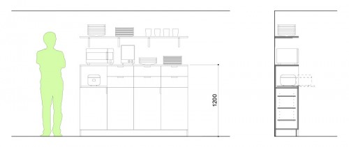
もう少し詳しく見てみましょう。一般的な食器棚は下の絵のように三段構成になっています。
多くの場合、カウンターの上には、炊飯器や電子レンジ、トースターなどが置かれていますし、他にも細々としたものが置かれているようです。
一見便利なようですが、ものが散乱しがちです。そして電子レンジやトースターなどは目の高さにあった方が使いやすいようにも思います。そこで下の絵のように、ある程度の高さ(1200ミリ)までカウンターを上げてしまうというのはどうでしょうか。そして高い位置の収納は使いにくいという声も多くあったので、思い切って棚だけにしてみました。
このようにすることで、電子レンジやトースターはかがまなくとも中のものが見やすくなりますし、手の届かない吊戸棚より取り出しやすいカウンター下の収納量も増えるでしょう。ただ炊飯器だけは上から覗き込めるよう引き出しをつけて少し低い位置に置いてみました。
いかがでしょうか、食器棚のカウンターの高さと形について。みなさんのご意見お寄せください。



