-
#118 これからのリノベーションについて vol.2 ~キッチンと洗面化粧台を一緒にしちゃいました!
update:2022/03/22
-
#117 これからのリノベーションについて vol.1 ~クローゼットの使い方を考える
update:2021/09/02
-
A044「玄関収納の使い方・バルコニーでの過ごし方について」のアンケート報告
update:2023/04/03
-
update:2023/03/31
-
update:2016/03/02
-
M28 食器棚について 〜入居者アンケートと訪問調査の中から
update:2015/12/24
-
update:2019/02/06
-
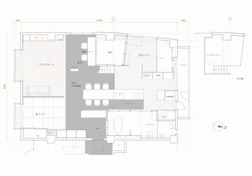
RT015「夫婦二人暮らしのくつろぎ空間」(Plan 17)
update:2018/10/23
-
J006 リノベーションで自由度のあるクローゼットを作りました
update:2022/01/26
-
update:2016/04/27
住まいの「フォト」&「間取り」コンペ【A.フォト部門】
参考例①「窓辺の風景」
季節ごとに窓辺を飾っています。住んだばかりの頃は植物を置いていたのですが、子供の作品や木馬を置くようになってから、近所の方がよく話しかけてくださったり、立ち止まって見てくれるようになり、子供も張り切って飾るようになりました。
家族だけでなく、みんなで楽しめる窓辺。
我が家だけでなく地域もお気に入りの空間です。

参考例②「うちのお風呂はもう一つのお部屋」
「お風呂に入る時間は短いのでお風呂をお部屋としても利用できたらいいのに」。そんな想いがきっかけで思い切ってリフォームしました。子供が小さいうちは水遊びや汚してもよい空間として利用しています。またお風呂をガラス張りにしたことで家事をしながら遊んでいる子供たちを見守ることができるのも特徴です。家事の時短にも繋がり、家族のコミニュケーションも増えました。子供がもっと成長したら、ブラインドを付けて隠せるようにしたいと思います(笑)。



