-
#118 これからのリノベーションについて vol.2 ~キッチンと洗面化粧台を一緒にしちゃいました!
update:2022/03/22
-
#117 これからのリノベーションについて vol.1 ~クローゼットの使い方を考える
update:2021/09/02
-
A044「玄関収納の使い方・バルコニーでの過ごし方について」のアンケート報告
update:2023/04/03
-
update:2023/03/31
-
update:2016/03/02
-
M28 食器棚について 〜入居者アンケートと訪問調査の中から
update:2015/12/24
-
update:2019/02/06
-
RT015「夫婦二人暮らしのくつろぎ空間」(Plan 17)
update:2018/10/23
-
J006 リノベーションで自由度のあるクローゼットを作りました
update:2022/01/26
-
update:2016/04/27

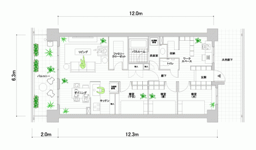
#24 廊下を使う 〜個室を小さくして、廊下に機能をもたせる
今回は、廊下の使い方と個室の関係について考えてみたいと思います。
廊下をうまく使うと、そこは単なる通路ではなくいろいろな使い方が考えられそうです。
そのためにも、個室はただ寝るだけの部屋として最小限の部屋にしてみました。
小さくても何も置かず寝るためだけの空間にすることで、気持ちよく眠りに集中できるでしょう。そして、通常部屋の中にある収納やワークスペースを廊下に出してみました。個室を小さくすることで、共有スペースがその分広くなります。その共有スペースをどう使うのか、例えばファミリークローゼットやスタディールーム、セカンドリビングなど様々な可能性が考えられます。また夫婦寝室についてですが、夫婦別室またはベッドを横並びにしつらえてみました。夫婦でも生活の時間帯が違うとか、お互いの睡眠を邪魔したくないという方のご意見もよく聞きます。
下の絵は、収納を廊下側から使えるようにしました。自分のものと家族のものを分けて、すべて廊下に収納します。大きなファミリークローゼットもあり、十分な収納スペースを確保しています。効率的な収納計画が実現できるでしょう。さらに家族全員で使えるワークスペースもつくっています。玄関脇の独立した空間で本や書類もすべてここに納めることができるようにします。家族は使う時間帯も違うもの。うまくシェアすれば、個々のデスクを持つよりもずっと快適な広い空間を手に入れることができるでしょう。
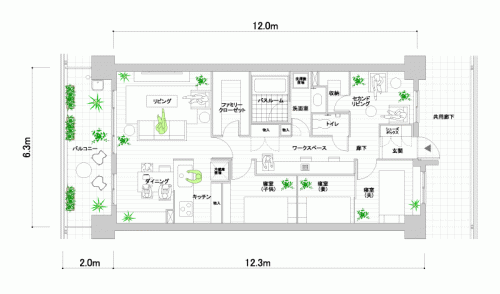
2つ目の案は、廊下にワークスペースをつくってみました。
大きなデスクの前面の壁には戸棚をつけています。そして収納に関しては、1つ目の案と同様、家族全員で使えるファミリークローゼットをつくりましたが、廊下をワークスペースにする事で、セカンドリビングという多目的に使えるくつろぎの空間を作ってみました。ファミリークローゼットには家の中のものをすべて納めます。必要な物は取りに行って、使ったらしまうという考え方です。家の中にものを散乱させない、部屋の面積よりもいつも整った環境をつくることで家は見かけよりも広く見えるものです。
3つ目の案は、ワークスペースを引き戸で隠してみました。きれいにと言っても、時にはやりかけの仕事などもあるはずです。そんな時には机の上はそのままにして扉を閉めて隠す事もできます。個室は2つ目の案よりは少し広めにして、窓際にカウンターをつくってみました。部屋の中で化粧をしたいという方もいるでしょう。収納スペースは2つ目の案と同様にファミリークローゼットをつくっていますが子ども部屋には収納を別に設けました。
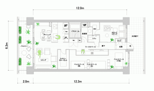
4つ目の案は、廊下に洗濯置き場と手洗いを設けてみました。こうすることで、お風呂脇の洗面脱衣室がすっきりします。洗濯はお風呂に近いほうがいいという方が多いようですが、独立させる事で、広さも確保でき洗濯スペースとしても使い勝手が良くなります。洗剤やピンチハンガーの収納場所もしっかりと備えておくと便利です。ここでは共有のワークスペースをリビングの一角に設けています。ファミリークローゼットも他の案のように確保してみました。さらに広めの玄関スペースをつくり、玄関先に光や風が入るようにしています。このことで廊下がより開放的な空間となるでしょう。
いかがでしょうか、廊下をうまく使うという事、また個室を寝るだけの最小限の大きさにする事。そうして生まれる余裕の空間を、家族で共有できる別の機能の空間としてみてはどうでしょうか。限られたマンションの空間をうまく使う事でもっと快適な環境を作り出すことができるかもしれません。
みなさんのご意見を教えてください。












