-
#118 これからのリノベーションについて vol.2 ~キッチンと洗面化粧台を一緒にしちゃいました!
update:2022/03/22
-
#117 これからのリノベーションについて vol.1 ~クローゼットの使い方を考える
update:2021/09/02
-
A044「玄関収納の使い方・バルコニーでの過ごし方について」のアンケート報告
update:2023/04/03
-
update:2023/03/31
-
update:2016/03/02
-
M28 食器棚について 〜入居者アンケートと訪問調査の中から
update:2015/12/24
-
update:2019/02/06
-
RT015「夫婦二人暮らしのくつろぎ空間」(Plan 17)
update:2018/10/23
-
J006 リノベーションで自由度のあるクローゼットを作りました
update:2022/01/26
-
update:2016/04/27

#14 家の内と外、その間を考える(床段差を積極利用する暮らし)
今回は、家の内と外、その間の境界線について考えてみたいと思います。
日本の家には縁側や土間といった、外とつながっていて、内とも外ともいえるような中間の領域がありました。土間から床に腰掛けたり、縁側でご近所の人とコミュニケーションがとれるような空間があったのです。そしてこの中間領域があることで、生活のシーンに豊かさがありました。そこには人とのつながりがあるだけでなく、自然との接点もあります。障子やひさしが見たい風景を切り取り、外の景観を内に取り込むための装置でもありました。また濡れ縁に出て、外の山々を借景に、庭の木々から季節の変化を肌で感じることもできました。
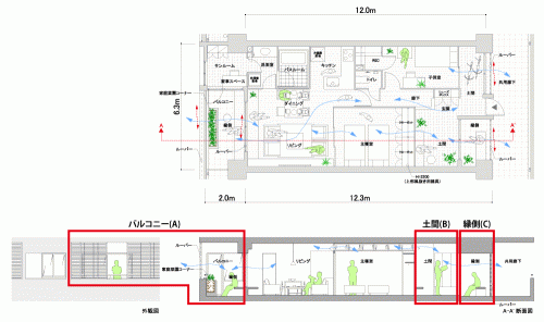
同じようにマンションでも縁側やサンルームがあったらどうでしょう。下の図をご覧ください。
バルコニーの奥行きを2mと少し大きくとって、家の中まで入り込むようにしてみました。この外部には濡れ縁のようにして腰掛けることもできますし、ウッドデッキを敷いて部屋とつながるようにするのもいいでしょう。また家庭菜園などを楽しめるようにもしてみました。
一部は、サンルームのようにガラスで仕切った部屋にするのもいいでしょう。ベランダの手すりの上部は引き違いのルーバーを取り付け、日差しを遮ることができるようにしました。植栽などを置いて緑の緩衝帯をつくることで、夏の暑い日は、緑の蒸散作用で涼しい風が家の中に流れてくるでしょう。ルーバーがあることで、家の外でありながら部屋の中のような過ごし方ができそうです。
もう一方で、玄関側にも工夫が必要かもしれません。玄関脇をアルコーブにして、夕涼みやご近所とのコミュニケーションの場所にもなるといいでしょう。ルーバーを閉じれば家の中のようにも使えます。内部の玄関も土間を広くして自転車などを置けるようにしてみました。また風が通るように開口部を大きくとって、開放できるようにしてみました。こうすることでバルコニー側から玄関まで一気に風が流れます。光や風を家の中にどう入れていくのか、そして自然を感じるために緑をどう配置していくのか、様々なアイデアがあるでしょう。
冬は南の窓側近くの縁側に座ったり、夏は北側の涼しい場所に座るなど、季節によって過ごす場所を変えるのもいいかもしれません。
いかがでしょうか。家の外と内の間を考える。みなさんのご意見を教えてください。





