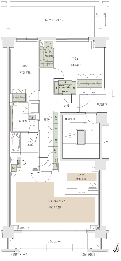
ポートレートモード(縦置き)表示でご覧ください。

Hrtype
2LDK+WIC+SIC
専有面積/102.24m2(約30.92坪)

バルコニー面積/8.99m2(約2.71坪)

ルーフバルコニー面積/21.75m2(約6.57坪)

室外機置場面積/1.56m2(約0.47坪)

設備スペース面積/1.26m2(約0.38坪)

床暖房範囲 収納範囲
WIC:ウォークインクローゼット SIC:シューズインクローゼット
※掲載の図面は、計画段階のもので変更になる場合がございます。詳細は図面集をご参照ください。